柏蔚森
首頁
項目概況
戶型圖鑒
配套設施
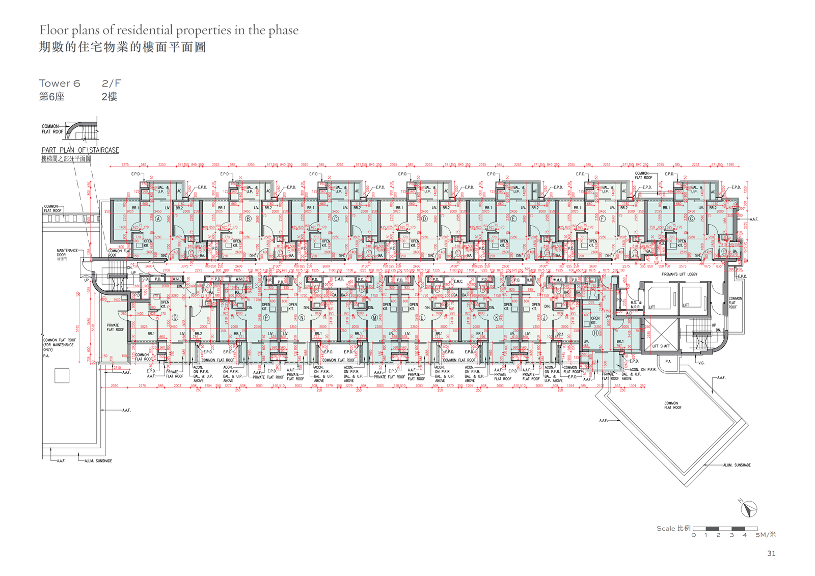
平面圖則
售樓説明書
常見問題
預約參觀
平面圖則
了解整個項目的布局設計
‹
›
×
‹
›